Quadrilocale in vendita

Attimis, Via Dottor Giovanni Marcolina
€ 125.000
4 locali 4 locali
110 Mq 110 Mq
2 bagni 2 bagni

Quadrilocale in vendita

Attimis, Via Dottor Giovanni Marcolina

Descrizione annuncio

Tecnocasa la più grande rete di intermediazione in Europa con 2807 punti vendita in Italia e 4022 nel mondo vi propone:

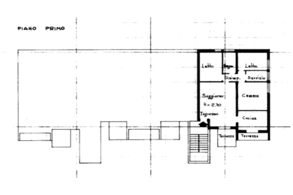
Ad Attimis, in una palazzina tranquilla di soli due piani, proponiamo in vendita un appartamento al primo piano, ideale per chi cerca comfort e tranquillità.

L’immobile si apre su un luminoso soggiorno con accesso a un balcone, mentre la cucina abitabile dispone di un secondo balcone; entrambi i balconi garantiscono uno sfogo esterno e maggiore luminosità agli ambienti.

Un comodo disimpegno conduce alla zona notte, composta da tre camere da letto, di cui due matrimoniali, e da due bagni finestrati, uno con vasca e l’altro con doccia, entrambi completamente piastrellati.

Completano la proprietà un box auto coperto e una cantina, ideali come spazi accessori funzionali.

Mostra tutto

Nelle vicinanze

Trasporto pubblico Trasporto pubblico
Trasporto pubblico
1,8 Km
Scuole Scuole
Scuola Primaria Giousue' Carducci
360 m
Farmacia Farmacia
Farmacia Moneghini
150 m
Supermercati Supermercati
Despar
140 m
Bar Bar
Lupus in Fabula
2,6 Km
Ristoranti Ristoranti
Da Rico
210 m
Agriturismo ai Faris
1,7 Km
Osteria alla pancetta
2,2 Km
Barbe Blas
2,5 Km
Prosciutteria Martinuzzi
2,7 Km
Mostra tutto

Caratteristiche

Rif.:
61197147
Piano:
1 di 2 (Piano basso)
Box:
1
Balconi:
2
Camere da letto:
3
Arredamento:
Assente
Mostra tutto
Prezzo Prezzo
€ 125.000
Rata mutuo Rata mutuo
€ 589 / mese
Spese annue Spese annue
€ 500
Proponi il tuo prezzoProponi il tuo prezzo

Classe Energetica

G
G
G
G
G
G
G
G
G
EP globale non rinnovabile:
171.38 kW h/m² anno
EP globale rinnovabile:
0.00 kW h/m² anno
EP invernale del fabbricato:
EP estiva del fabbricato:
Anno di costruzione:
1990
Riscaldamento:
Autonomo
Tipo impianto:
A radiatori
Tipo alimentazione:
Metano

Ti interessa visionare l'immobile?

Fissa un appuntamento  Fissa un appuntamento

Richiedi informazioni

Clicca su Leggi per aprire l'informativa
* Questi campi sono obbligatori

Calcola il tuo mutuo

Semplice e senza impegno
Anticipo

( % )
Mutuo

( % )

pochi semplici passi

inserisci i tuoi dati
Questionario completato
Grazie per aver richiesto un appuntamento senza impegno con un nostro Consulente del Credito e Assicurativo.

Hai inserito correttamente tutti i dati necessari e a breve riceverai una e-mail con un link da convalidare per inviare i tuoi dati.
Affiliato
Tarcentro Srl
Viale Giacomo Matteotti, 2 33017 Tarcento (UD)

Il nostro staff


  • Emily Bendo
    Coordinatrice

  • Giulio Camarretta
    Collaboratore

  • Luca Matteo Koropatiuk
    Collaboratore

  • Lisa Madotto
    Collaboratrice

  • Tomi Dedushaj
    Affiliato
Viale Giacomo Matteotti, 2 33017 Tarcento (UD)
Zona: Tarcento-Magnano-Artegna-Attimis-Taipana-Montenars
Mostra su mappa
Orari: Dal lunedì al venerdi dalle 09.00-13.00 e dalle 15.00-19.30. Sabato dalle 09.30 fino alle 13.00
Affiliato
Tarcentro Srl
Viale Giacomo Matteotti, 2 33017 Tarcento (UD)

2026 Tecnocasa Franchising S.p.A. - P. IVA 08365160152 - Via Monte Bianco 60/A 20089 Rozzano (MI). Ogni agenzia ha un proprio titolare ed è autonoma. Privacy policy | Policy utilizzo | Cookie policy